Mục lục bài viết
Cách đọc bản vẽ kỹ thuật là kỹ năng nền tảng không chỉ dành cho kiến trúc sư hay người làm thiết kế, mà còn rất quan trọng với thợ thi công, giám sát công trình và cả chủ đầu tư muốn kiểm soát chất lượng thực tế. Chỉ cần hiểu sai một ký hiệu, đọc nhầm một kích thước hoặc bỏ qua một mặt cắt, công trình có thể thi công lệch hoàn toàn so với ý đồ thiết kế ban đầu.
1. Cách đọc bản vẽ kỹ thuật bắt đầu từ đâu
Người mới thường có thói quen nhìn ngay vào chi tiết hoặc hình ảnh lớn trên bản vẽ, nhưng đây không phải cách đọc hiệu quả. Muốn đọc đúng, trước hết cần xác định bản vẽ đó thuộc bộ hồ sơ nào, gồm những phần gì và đang thể hiện hạng mục nào trong toàn bộ công trình.
Với hồ sơ kiến trúc, các phần chính thường bao gồm kiến trúc, kết cấu và điện nước. Với hồ sơ nội thất, thành phần phổ biến thường gồm xây dựng cơ bản như tường, trần, sàn, vách, cửa, phần điện và thiết bị, phần cấp thoát nước và phần đồ nội thất, đồ trang trí. Khi biết mình đang đọc phần nào, người đọc sẽ dễ xác định đúng ngữ cảnh và tránh hiểu nhầm thông tin kỹ thuật.
Nếu chưa quen, người đọc nên áp dụng theo đúng thứ tự sau để không bị rối thông tin:
– Bước 1: đọc tên bản vẽ và phạm vi hạng mục
Hãy xem bản vẽ đang nói về tầng nào, khu vực nào, hạng mục nào và nằm ở phần nào của bộ hồ sơ. Đây là bước đầu tiên để không đọc nhầm giữa bản vẽ mặt bằng chung, bản vẽ trần, bản vẽ điện hay bản vẽ chi tiết đồ nội thất.
– Bước 2: kiểm tra ký hiệu, ghi chú và thống kê bản vẽ
Trước khi nhìn vào hình chiếu, cần đọc phần chú thích, bảng ký hiệu, ghi chú vật liệu và các thông tin liên quan đến quy ước thể hiện. Đây là chìa khóa để hiểu những gì bản vẽ đang nói, đặc biệt khi cùng một ký hiệu có thể mang ý nghĩa khác nhau theo từng nhóm bản vẽ.
– Bước 3: đọc kích thước tổng thể trước
Người đọc nên nắm các kích thước chính như chiều dài, chiều rộng, cao độ hoặc kích thước phủ bì trước khi đi vào chi tiết nhỏ hơn. Đây là cách giúp hình dung nhanh quy mô của hạng mục đang xem.
– Bước 4: đối chiếu giữa các hình chiếu
Một bản vẽ kỹ thuật thường không thể hiểu đầy đủ nếu chỉ nhìn một mặt bằng hoặc một mặt đứng. Người đọc cần đối chiếu giữa mặt bằng, mặt đứng, mặt cắt, mặt cạnh và các chi tiết phóng to để nhìn ra đầy đủ cấu tạo của đối tượng.
– Bước 5: kiểm tra lại các thông số kỹ thuật quan trọng
Sau khi đã hiểu hình dạng và cấu tạo chung, người đọc cần quay lại kiểm tra kỹ phần kích thước, vật liệu, cao độ, phụ kiện, ký hiệu lắp đặt hoặc các ghi chú đặc biệt để tránh bỏ sót những chi tiết ảnh hưởng trực tiếp đến thi công.
2. Cách đọc bản vẽ kỹ thuật qua các hình chiếu cơ bản
2.1 Mặt bằng
Mặt bằng là hình chiếu từ trên xuống sau khi giả định công trình hoặc vật thể được cắt ngang ở một cao độ nhất định. Trong bản vẽ kỹ thuật, mặt bằng cho biết cách bố trí không gian, vị trí tường, cửa, đồ đạc, hướng giao thông và các tương quan kích thước theo phương ngang. Với nội thất, mặt bằng còn cho thấy cách sắp xếp công năng và vị trí các hạng mục trang trí hoặc thiết bị.
2.2 Mặt đứng
Mặt đứng là hình chiếu thẳng góc giúp người đọc nhìn được hình dáng bên ngoài của một mảng tường, một hạng mục hoặc toàn bộ công trình theo phương thẳng đứng. Qua mặt đứng, người đọc hiểu được tỷ lệ cao thấp, bố cục mặt ngoài, vị trí phân chia chi tiết và quan hệ giữa các yếu tố theo chiều cao.
2.3 Mặt cắt
Mặt cắt là hình biểu diễn phần bên trong sau khi giả định cắt qua vật thể hoặc công trình. Đây là phần cực kỳ quan trọng trong cách đọc bản vẽ kỹ thuật vì nó giúp người đọc nhìn thấy các cấu tạo khuất mà mặt bằng hoặc mặt đứng không thể hiện hết. Với bản vẽ nội thất, mặt cắt giúp hiểu rõ cấu tạo ngăn kéo, khoang tủ, hệ khung, hậu tủ, trần thạch cao, kết cấu vách hoặc nhiều chi tiết thi công bên trong khác.
3. Cách đọc bản vẽ kỹ thuật nội thất chi tiết hơn
Sau khi đã nắm được trình tự chung, người đọc có thể áp dụng vào bản vẽ nội thất. Về bản chất, bản vẽ nội thất vẫn tuân theo các nguyên tắc kỹ thuật chung, nhưng cần chú ý nhiều hơn đến cấu tạo đồ đạc, vật liệu hoàn thiện, hệ điện chiếu sáng và các chi tiết trang trí.
3.1 Đọc ký hiệu cửa và cửa sổ
Ký hiệu cửa và cửa sổ giúp xác định loại cửa, chiều mở, vị trí lắp đặt và kích thước liên quan. Khi đọc phần này, không nên chỉ nhìn hình dạng ký hiệu mà cần đối chiếu thêm với mặt bằng và mặt đứng để hiểu chính xác cách vận hành và kích thước thực tế.

Cách đọc bản vẽ kỹ thuật nội thất chi tiết hơn

Cách đọc bản vẽ kỹ thuật nội thất chi tiết của cửa và cửa sổ
3.2 Đọc các ký hiệu phần xây dựng cơ bản
Trong hồ sơ nội thất, phần xây dựng cơ bản thường bao gồm tường, trần, sàn, vách, gạch ốp và các bề mặt hoàn thiện. Đây là phần ảnh hưởng trực tiếp đến cách triển khai nội thất nên người đọc cần nắm rõ ký hiệu vật liệu, quy cách hoàn thiện và các kích thước liên quan.

Đọc các ký hiệu phần xây dựng cơ bản 1

Đọc các ký hiệu phần xây dựng cơ bản 2

Đọc các ký hiệu phần xây dựng cơ bản 3
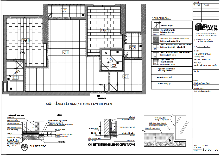
3.3 Đọc phần lát sàn và vật liệu hoàn thiện
Phần lát sàn không chỉ cho biết loại vật liệu mà còn thể hiện hướng lát, mã vật liệu, cách chia mảng và liên hệ với các không gian khác. Nếu bỏ qua phần này, khi thi công rất dễ xảy ra lệch vật liệu hoặc sai hướng hoàn thiện.

Đọc phần lát sàn và vật liệu hoàn thiện
3.4 Đọc các loại nét cơ bản trên bản vẽ
Người đọc cần phân biệt được nét liền đậm, nét liền mảnh, nét đứt, nét tâm và các nét giới hạn để hiểu đâu là phần nhìn thấy, đâu là phần khuất, đâu là trục hoặc đường kích thước. Đây là nền tảng quan trọng trong mọi hướng dẫn về cách đọc bản vẽ kỹ thuật.

Đọc các loại nét cơ bản trên bản vẽ
3.5 Đọc ký hiệu bếp, thiết bị vệ sinh và đồ nội thất
Trong bản vẽ nội thất, các khu vực như bếp, nhà tắm, bàn ghế hoặc đồ rời đều có ký hiệu và quy ước thể hiện riêng. Người đọc cần đối chiếu giữa ký hiệu và không gian sử dụng để hiểu đúng công năng, kích thước và vị trí lắp đặt của từng thiết bị.

Đọc ký hiệu bếp, thiết bị vệ sinh và đồ nội thất

Đọc ký hiệu bếp, thiết bị vệ sinh và đồ nội thất 2

Đọc ký hiệu bếp, thiết bị vệ sinh và đồ nội thất 2
4. Cách đọc bản vẽ kỹ thuật phần điện, ánh sáng và trần
Bản vẽ nội thất không chỉ có phần đồ gỗ mà còn bao gồm hệ điện, ánh sáng và trần thạch cao. Đây là phần rất dễ gây sai sót nếu người đọc chỉ quan tâm đến hình thức nội thất mà bỏ qua hạ tầng kỹ thuật đi kèm.
4.1 Phần điện và ánh sáng
Khi đọc bản vẽ điện, cần chú ý vị trí đèn, công tắc, ổ cắm, mạch điều khiển, cao độ lắp đặt và mối liên hệ với đồ nội thất xung quanh. Việc đọc đúng phần này giúp tránh xung đột giữa hệ điện và thiết kế sử dụng thực tế.

Phần điện và ánh sáng
4.2 Phần trần thạch cao
Với trần thạch cao, người đọc cần hiểu cao độ, kiểu trần, các cấp giật, vị trí đèn, khe sáng, miệng gió hoặc các chi tiết liên quan đến thiết bị kỹ thuật. Đây là phần tác động lớn đến thẩm mỹ và thi công nên phải được đọc đồng thời với mặt bằng và mặt cắt.
5. Những lỗi người mới thường gặp khi đọc bản vẽ kỹ thuật
– Chỉ nhìn hình mà không đọc ghi chú và ký hiệu đi kèm.
– Đọc riêng từng bản vẽ mà không đối chiếu giữa mặt bằng, mặt đứng và mặt cắt.
– Nhầm giữa kích thước hình in và kích thước thật ghi trên bản vẽ.
– Bỏ qua vật liệu, cao độ hoặc các ghi chú kỹ thuật nhỏ nhưng quan trọng.
– Không nắm quy ước nét vẽ nên hiểu sai phần khuất, phần thấy và phần cắt.
Chỉ cần tránh được các lỗi này, khả năng đọc hiểu bản vẽ của người mới sẽ cải thiện rất nhanh.
Nếu muốn đọc bản vẽ tốt và ứng dụng được vào công việc, người học nên kết hợp song song ba nhóm kiến thức là AutoCAD cơ bản, nguyên lý hình chiếu và cấu tạo thực tế của các hạng mục nội thất hoặc kiến trúc. Khi có đủ ba phần này, việc đọc bản vẽ sẽ không còn là nhìn ký hiệu rời rạc mà là hiểu được logic triển khai đằng sau bản vẽ đó.
Người mới có thể tham khảo thêm khóa học AutoCAD cơ bản cho người mới bắt đầu để nắm chắc nền tảng công cụ, đồng thời xem tiếp bài hướng dẫn lập bản vẽ triển khai nội thất và bổ kỹ thuật nội thất 2D để hiểu sâu hơn cách một bộ hồ sơ kỹ thuật được xây dựng.
Cách đọc bản vẽ kỹ thuật không khó nếu người đọc đi đúng trình tự, hiểu đúng ký hiệu và biết đối chiếu giữa các hình chiếu. Khi nắm chắc nguyên tắc này, việc đọc bản vẽ nội thất chi tiết sẽ dễ hơn nhiều và cũng là nền tảng quan trọng để học sâu hơn về triển khai kỹ thuật, thi công và giám sát công trình.