Mục lục bài viết
Cách đọc bản vẽ nội thất là kỹ năng rất quan trọng với người học thiết kế, người làm thi công và cả những ai muốn hiểu rõ phương án bố trí không gian trước khi triển khai thực tế. Mỗi ký hiệu, mỗi đường trục, mỗi kích thước và từng hình chiếu đều mang thông tin rất cụ thể về cách tổ chức không gian, cách bố trí đồ nội thất, vật liệu và nhiều chi tiết liên quan đến quá trình thi công. Khi nắm được nguyên tắc đọc bản vẽ, người đọc sẽ tiết kiệm rất nhiều thời gian trong việc trao đổi, chỉnh sửa và kiểm tra hồ sơ.
1. Cách đọc bản vẽ nội thất trong 5 bước cho người mới
Hướng dẫn chi tiết cách đọc bản vẽ nội thất trong 5 bước cho người học thiết kế, người muốn hiểu rõ phương án bố trí không gian và cả những người làm thi công:
1.1 Bước 1: đọc thông tin tổng quan của hồ sơ
Trước khi nhìn vào chi tiết, người đọc nên xem tên công trình, loại công trình, khu vực thiết kế, ghi chú chung và các chỉ dẫn kỹ thuật có trong hồ sơ. Đây là bước giúp xác định bản vẽ đang thuộc hạng mục nào, dùng cho mục đích gì và phạm vi đọc đến đâu. Nếu bỏ qua bước này, người mới rất dễ nhầm giữa bản vẽ nội thất với bản vẽ kiến trúc, kết cấu hoặc hệ thống kỹ thuật.
Người đọc cũng nên chú ý tỷ lệ bản vẽ, ký hiệu quy ước và danh mục bản vẽ nếu hồ sơ có nhiều trang. Việc này giúp định hình được logic sắp xếp của hồ sơ trước khi đi sâu vào từng phần.

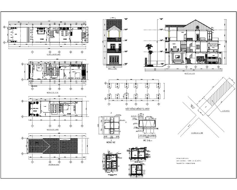
Cách đọc bản vẽ thiết kế nội thất chuẩn xác
1.2 Bước 2: đọc mặt bằng để hiểu công năng và bố trí không gian
Mặt bằng là phần rất quan trọng trong cách đọc bản vẽ nội thất, vì đây là nơi thể hiện rõ bố trí các khu vực chức năng, vị trí cửa, lối đi, đồ nội thất chính và mối quan hệ giữa các không gian. Khi nhìn vào mặt bằng, người đọc nên xác định trước phòng nào là phòng khách, bếp, phòng ngủ, khu vệ sinh hoặc không gian làm việc, sau đó mới quan sát cách bố trí từng món nội thất trong đó.
Ở bước này, cần đặc biệt chú ý đến kích thước tổng thể, kích thước từng khu vực và khoảng cách lưu thông. Đây là cơ sở để hiểu thiết kế có thuận tiện cho sử dụng thực tế hay không. Nếu muốn hiểu sâu hơn về hồ sơ triển khai đồ gỗ, người đọc có thể xem thêm bài hướng dẫn đọc bản vẽ gỗ nội thất.
1.3 Bước 3: đọc kích thước và các đường trục thật cẩn thận
Một trong những lỗi phổ biến của người mới là chỉ nhìn hình mà không đọc kỹ kích thước. Trong khi đó, kích thước mới là phần quyết định tính chính xác của hồ sơ. Người đọc nên phân biệt kích thước chi tiết, kích thước liên trục và kích thước tổng thể để kiểm tra xem chúng có logic với nhau hay không. Nếu các lớp kích thước cộng lại không khớp, rất có thể hồ sơ đang có lỗi hoặc người đọc chưa hiểu đúng bản vẽ.
Đường trục cũng rất quan trọng vì nó giúp xác định vị trí các thành phần trong công trình. Khi đọc quen, người xem sẽ hiểu được cách đồ nội thất, vách, tường và các thành phần kỹ thuật được đặt trong mối quan hệ với nhau như thế nào.
1.4 Bước 4: đối chiếu mặt đứng, mặt cắt và hình chiếu
Sau khi nắm được mặt bằng, người đọc cần chuyển sang mặt đứng và mặt cắt để hiểu rõ hơn về chiều cao, cao độ, hình dáng chi tiết và cách các thành phần được thể hiện theo phương thẳng đứng. Đây là bước rất quan trọng vì nhiều chi tiết nội thất như tủ, kệ, vách trang trí, lam, trần hoặc mảng tường không thể hiểu đầy đủ nếu chỉ nhìn mặt bằng.
Việc đối chiếu giữa mặt bằng, mặt đứng và mặt cắt giúp người đọc hình dung không gian ba chiều rõ hơn. Khi làm quen được bước này, việc xem hồ sơ sẽ bớt cảm giác rời rạc và dễ hiểu hơn rất nhiều.

Đối chiếu mặt đứng, mặt cắt và hình chiếu trong bản vẽ
1.5 Bước 5: kiểm tra lại tổng thể và ghi chú các điểm chưa rõ
Bước cuối cùng trong cách đọc bản vẽ nội thất là kiểm tra lại toàn bộ những gì đã xem, đối chiếu giữa các bản vẽ và ghi chú những điểm chưa rõ để hỏi lại người thiết kế hoặc đội thi công. Đây là thói quen rất cần thiết vì giúp hạn chế hiểu sai và tránh triển khai sai ngoài thực tế.
Người mới không nên cố nhớ mọi ký hiệu trong một lần đọc. Quan trọng hơn là biết cách lần theo logic của hồ sơ và đặt câu hỏi đúng chỗ. Càng quan sát nhiều bản vẽ và so sánh với công trình thực tế, khả năng đọc bản vẽ sẽ càng tiến bộ nhanh hơn.
2. Người mới gặp khó khăn gì khi học cách đọc bản vẽ nội thất?
Khó khăn lớn nhất là chưa quen với ngôn ngữ bản vẽ, dẫn đến việc nhìn thấy nhiều thông tin nhưng không biết nên bắt đầu từ đâu. Ngoài ra, người mới thường dễ bị rối giữa bản vẽ mặt bằng và phối cảnh, hoặc không phân biệt được vai trò của mặt đứng, mặt cắt và chi tiết kỹ thuật. Một số người cũng bỏ qua kích thước và chỉ nhìn hình minh họa, khiến việc hiểu hồ sơ không đầy đủ.
Cách khắc phục hiệu quả nhất là luyện đọc theo đúng trình tự, đồng thời kết hợp quan sát công trình thực tế hoặc mô hình 3D để nối được giữa bản vẽ hai chiều và không gian thật. Người đọc có thể tham khảo thêm về phần mềm 3Ds Max và các tính năng cơ bản để hiểu rõ hơn mối liên hệ giữa dựng hình 3D và hồ sơ bản vẽ nội thất.
Muốn đọc bản vẽ nhanh hơn, người học nên luyện thói quen quan sát hồ sơ theo thứ tự cố định, luôn bắt đầu từ tổng quan đến chi tiết. Bên cạnh đó, nên thực hành với nhiều loại bản vẽ khác nhau, từ bản vẽ mặt bằng đơn giản đến hồ sơ triển khai nội thất hoàn chỉnh. Mỗi lần đọc, hãy tự trả lời các câu hỏi như công năng ở đâu, kích thước ra sao, lối đi có hợp lý không, cao độ và mặt đứng có khớp không.
Đây là kỹ năng cần thời gian tích lũy, nhưng nếu rèn đúng cách thì tốc độ tiến bộ sẽ khá nhanh. Với người học nghề nghiêm túc, khả năng đọc bản vẽ tốt gần như là điều kiện bắt buộc để làm việc hiệu quả hơn sau này.

Khó khăn khi đọc bản vẽ nội thất
Cách đọc bản vẽ nội thất nên đi từ logic cơ bản, hiểu đúng vai trò của từng loại bản vẽ và kiên trì luyện tập. Khi đã quen, bản vẽ không còn là những ký hiệu rời rạc mà sẽ trở thành ngôn ngữ rất rõ ràng để người học, người thiết kế và người thi công cùng làm việc với nhau hiệu quả hơn.